Sidewalk South of Illini Union
Jul 08, 2025 | 1:40 pm
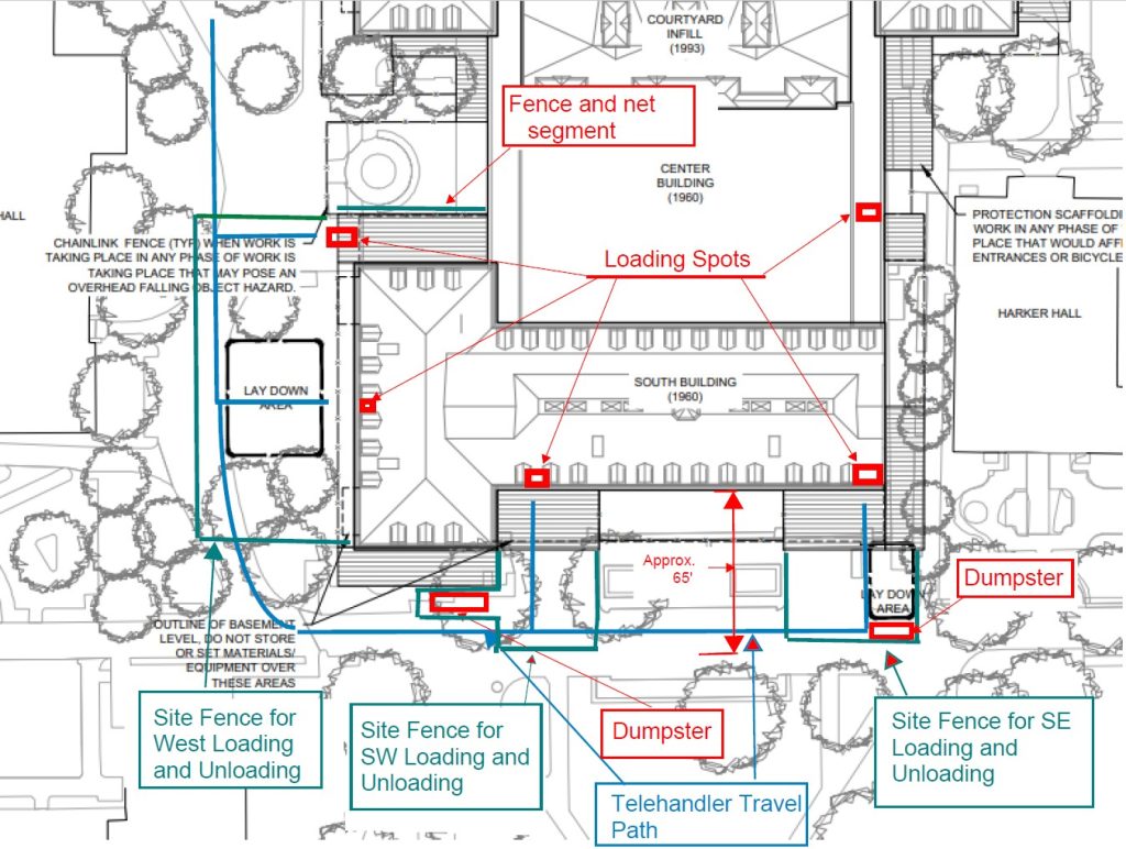
Approved Sidewalk Closure - North Half of Sidewalk South of Illini Union from 7-3-25 to 3-6-26

Links
The north half of the sidewalk on the Illini Union’s south side, will be closed from Thursday, July 3, 2025, to Friday, March 6, 2026. Please be aware that this closure is necessary to support ongoing improvement work for the facility’s multi-phase roof renovation project, as well as to maintain site access for crews involved in the Altgeld Hall exterior renovation phase.
All students, faculty, and staff are reminded to follow posted construction signage around facilities and streets for their safety and to help protect individuals performing work. This includes using only the designated building entrances and adhering to sidewalk and pathway closures and reroutes. Thanks for always remaining outside construction perimeters and giving contractors sufficient room to perform this vital work, especially at fenced and barricaded access points.
Reason: Loading and unloading roof materials
Approved Sidewalk Closure – North Half of Sidewalk South of Illini Union from 7-3-25 to 3-6-26

